Locaux d'activités / entrepôts récents à vendre dans la ZAC de l'Ormes à Viarmes dans le Val d'Oise (95) | 95270 Viarmes
Prix : 680 000€
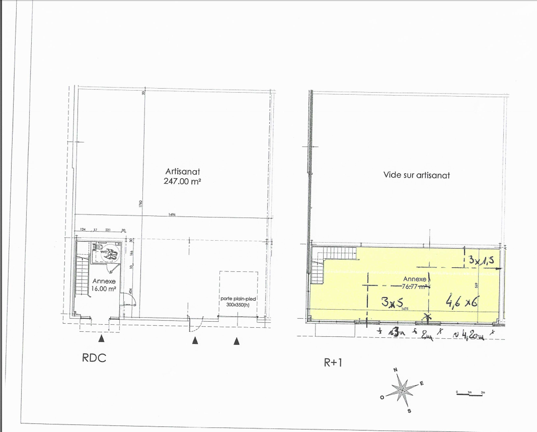
Surface : 338,00m2 | Dispo : Immédiate

5 emplacements de parking privatifs


Plan

Nous contacter

Ce bien vous interesse ?
Nous vous recontactons dans les 24H.

Prendre un rendez-vous

Présentation du bien
STC vous propose à la vente des locaux d'activités construits en 2020 dans une nouvelle zone d'activité située entre Roissy CDG et Cergy Pontoise. 262 m² d'activités / entrepôt au RDC accessible par une porte sectionnelle motorisée de 4 m de haut. 8 m de hauteur sous plafond permettant de stocker, dalle béton supportant la charge au sol. Accueil avec sanitaires. Au premier étage, 76 m² de bureaux, 2 bureaux cloisonnés, 1 open space. Climatisation réversible, sol PVC, éclairage LED et faux-plafond. Fenêtre coupe feu permettant de voir l'atelier.

- Prix: 680000€
- Type d'offre: Vente
- Surface: 338 m2
- Etat general: Excellent état
- localisation: Viarmes
- Code Postal: 95270
- Dispo : Immédiate